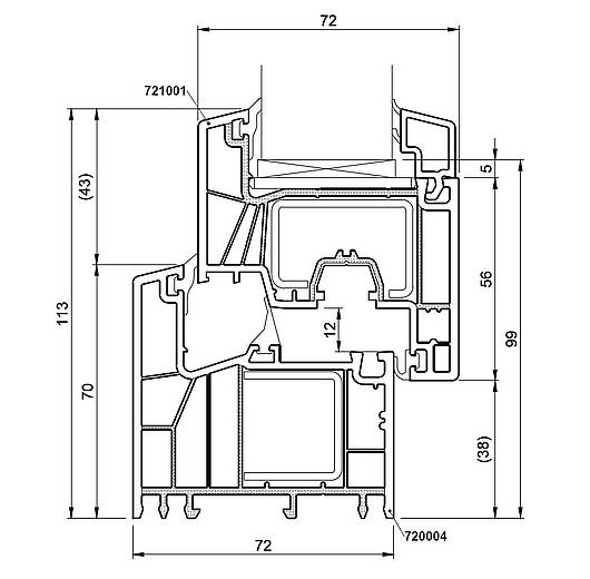
Salamander ProEvolution 72
Caracteristici :
- profilele au structura cu 5 camere termice;
- profilele au un coeficient de transfer termic de pana la 0,73 W/m2K;
- etansarea se realizeaza prin doua sau trei randuri de garnituri, de culoare negru sau gri;
- permite montarea de geam dublu de 24 mm, sau triplu – cu grosimea de 44 mm;
- ferestrele sunt disponibile in 5 culori: alb, stejar auriu, mahon, wenge, nuc, sau culori si folii personalizate;
- profilele sunt ecologice, nu contin plumb;
- profilele sunt 100% reciclabile;
- design deosebit ce combina suprafete plane cu muchii rotunjite;
- timp de executie si montaj mic, cuprins intre 7 si 10 zile.
Avantaje:
- rezistenta termica ridicata;
- izolare fonica ridicata;
- suprafete netede, usor de intretinut;
- permeabilitate redusa la aer si apa, datorita etansarii cu doua randuri de garnituri;
- garnituri EPDM, din cauciuc, cu un timp mare de imbatranire, comparativ cu garniturile plastificate – ce au un timp de imbatranire foarte scurt;
- falt inclinat in profile pentru directionarea apei si facilitarea curatarii;
- protectie la razele ultraviolete; profilele nu isi modifica culoarea datorita expunerii la soare;
- rezistenta in mediul natural marin, alpin, urban;
- rezistenta la impact ridicata;
- profilele sunt neinflamabile si nu necesita vopsire sau chituire;
- fenomenul de condens se poate evita prin utilizarea sticlei Low-E si Planitherm 4 Seasons;
- posibilitatea inlocuirii cu usurinta a geamului, datorita baghetelor usor demontabile.

Termopane Salamander ProEvolution 72 – eficiență, design și durabilitate
Termopanele Salamander ProEvolution 72 reprezintă o soluție modernă pentru locuințe și spații comerciale care pun accent pe izolație termică ridicată, design elegant și fiabilitate pe termen lung. Sistemul ProEvolution 72, dezvoltat de Salamander , este unul dintre cele mai apreciate profile PVC din Europa, fiind ideal pentru ferestre și uși eficiente energetic.
Cu o adâncime constructivă de 72 mm și structură cu mai multe camere de izolare, termopanele Salamander contribuie semnificativ la reducerea pierderilor de căldură, menținând un confort termic constant indiferent de anotimp. Acest sistem este compatibil cu geam termoizolant dublu sau triplu, oferind performanțe excelente atât din punct de vedere termic, cât și fonic.


